In this training series, we will design the following 3D model step-by-step on a tablet. In this section, we will design a total of 12 parts. Since you can learn all the details of the design from the video content, I have only touched on the important points in the explanations. In the next blog post, we will focus on assembly and technical drawings. If you are ready, let’s begin.

Before starting the design steps, make sure you have access to Onshape so you can follow the workflow directly on your own device.
If you haven’t tried Onshape, PTC’s cloud-native CAD and PDM platform, yet, you can click on the link below to create a free Onshape account or try Onshape Professional—which includes tools such as Simulation and Render Studio—free for 6 months.
6 Months Free Access to Onshape Professional
We can now proceed with the step-by-step air engine design.
We will model the part where the engine chassis, engine block, and all other components will be mounted, adhering to the technical drawing in the image.

Pro Tip: A cornerstone of parametric design is creating fully defined sketches. When a sketch is fully defined (all dimensions and constraints are applied), the lines will turn from blue to black. This helps ensure your design can be modified later without “breaking.”
Pro Tip: To use the Hole command, we first need to create a point. After placing the point, we select the Hole command. We are choosing the Tapped type because the technical drawing specifies “M” (Metric) and a thread length. We set the size to M4, the total depth to 8 mm, and the thread depth to 6 mm, then confirm the feature.
Pro Tip: We will use the Linear Pattern command to create the other holes. The most important thing to watch for when creating a linear pattern is selecting the correct Pattern Type. Since we are patterning a feature in this case, we will set the Pattern Type to Feature Pattern and select our “Hole” feature from the feature tree.
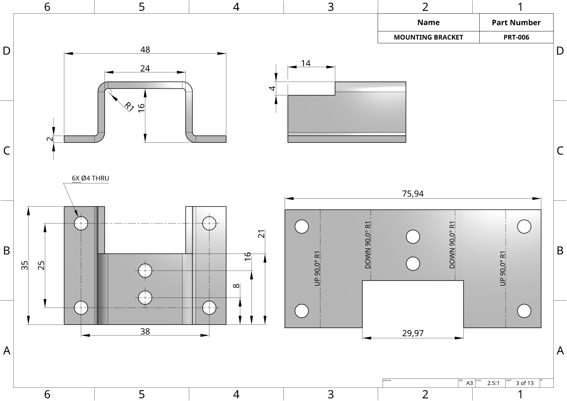
We will quickly model this part that forms the chassis using sheet metal commands.

Pro Tip: You don’t need a closed geometry to use the Sheet Metal Model command. As we’re doing in this design, you can also use an open geometry—in other words, a single profile.
Pro Tip: It is crucial for the manufacturing stage to ensure you enter the correct parameters that define the sheet metal. Pay close attention to parameters like sheet thickness, bend radius, and K-Factor.
Pro Tip: You must pay attention to the thickness direction. Whether the thickness is added to the inside or outside of your profile will change the final dimensions.
Next, we will model the part that will sit on the chassis and carry the crank–connecting rod mechanism. Since this is likely the part with the most complex-looking technical drawing among all the components, it’s important to pay close attention while working on it.

Pro Tip: Making a symmetric design provides many advantages. For example, it can save you the trouble of creating centerlines just to center your holes.
Pro Tip: You can create stepped holes by making a sketch and using the Revolve command, or you can get a faster result by using the Hole command with the Counterbore type.
Pro Tip: Creating your holes in a specific sequence, paying attention to which hole intersects which channel, will save you the hassle of dimensioning. (For example, you can use the Up to Next option to quickly create intersecting holes without needing to define a depth).
Pro Tip: When you need to create sketches that relate to internal geometries (like channels or holes), making your solid geometry Translucent (transparent) will make your work much easier.
Pro Tip: To add a constraint between two sketch entities, you often just need to align them. For example, when I drag the rectangle’s point to align with the cylinder’s center point (as shown in the Video), yellow dashed lines appear, indicating they are now horizontally aligned. You can make your sketch fully defined by adding constraints like this.
Pro Tip: To use the Slot command, you first need an axis line. After creating an axis line for the desired length of the slot, simply select the line and then choose the Slot command. All that’s left is to define the slot’s diameter.
We will model the part that is placed on top of the motor block and forms the combustion chamber between the piston and the head. The design process is similar to that of the Base Plate part.

We will model the part that connects to the crankshaft and makes the engine’s rotational motion more balanced and stable.

Pro Tip: Instead of creating stepped cylindrical parts by drawing and extruding individual circles, you can sketch half of the profile and use the Revolve command around an axis to create it in a single step.
Pro Tip: With the Circular Pattern command, you can pattern features using an axis or a cylindrical face as the center. When you select the “equal spacing” option, you only need to specify the number of instances.
We will model the main part of the crankshaft and connecting rod mechanism, which will be supported on bearings inside the motor block

We will model the part that connects with the CrankShaft part to form the complete crankshaft.

Pro Tip: One way to fully define a line that connects two circles is to add a Tangent constraint. Selecting the line and the circle and adding a Tangent constraint will help fully define the line. It’s useful to remember that you must do this for all circles that the line connects to.
Pro Tip: When you have intersecting sketch entities, you can use the Trim command to trim the lines to achieve the geometry shown in the technical drawing. This provides a cleaner and more understandable sketch for future revisions.
Pro Tip: When you are in a sketch and want to convert an existing edge or face into a sketch entity, simply select that edge or face and tap the Use command. This eliminates the need to waste time recreating reference geometry.
Pro Tip: When you want to Offset a sketch entity by a specific distance, simply select the entity, tap the Offset command, set the direction (using the arrow), and enter the distance. This is especially useful in technical drawings where a wall thickness is given instead of an outer diameter.
We will model the part that transmits the linear motion from the piston to the crankshaft, enabling the conversion of this motion into rotational motion.

Pro Tip: We’ve mentioned the importance of working symmetrically. If your design is symmetric, making your sketch symmetric will save you from repetition and errors. For example, in the Crank part, we created tangent lines on the left side. Doing the same operation on the right side would be a waste of time. Instead, you can use the Mirror command, select the centerline, and then select the entities to mirror.
We will model the part that moves linearly inside the motor block and transmits the linear motion it produces to the crankpin via the connecting rod. The design process is similar to that of the FlyWheel part.

We will model the part that connects the Crank and Connecting Rod. The design process is similar to that of the FlyWheel part.

We will model the part that provides the connection between the Piston and the Connecting Rod.

We will model the part that creates a specific clearance (gap) between the Crank and the Connecting Rod.

Now it’s your turn. You can try designing in Onshape by opening the technical drawing below. If you get stuck, you can return to our blog site and learn how to do it.
Don’t forget to subscribe to our blog to be notified of the next post, which will cover the Air Engine assembly and technical drawing creation.
[…] this training series, we will use a tablet to assemble the 12 parts we previously designed also on a tablet. Since I covered all the details in the videos, I only touched upon the important […]